Notice: Undefined variable: div_class in /home/wbxcfyu/www/wp-content/plugins/lt-ext/shortcodes/partners/view.php on line 33

Notice: Undefined variable: div_class in /home/wbxcfyu/www/wp-content/plugins/lt-ext/shortcodes/partners/view.php on line 33

Fenêtre aluminium, est un excellent choix pour vous.
Grâce à sa conception extraordinaire qui permet :
- Tenue de la fenêtre garantie jusqu’à 25 ans
- Apport solaire optimisé et une réduction des dépenses de chauffage et d’éclairage
- Possibilité d’intégrer des stores directement dans le vantail
- Conforme aux critères de la RT2012
- Seuil PMR
–

Homologation:
CSTB – DTA numéro 6/18-2386
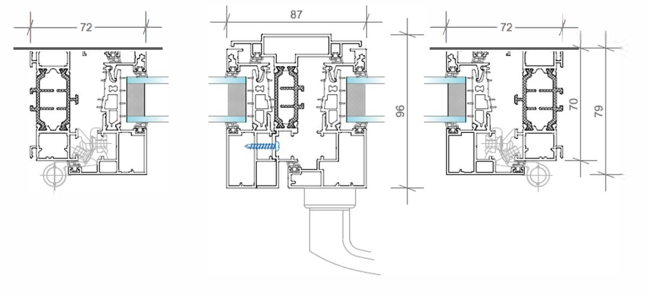
Thermique:
Uw = 1.3 Wm²K / Sw = 0.39 et Tlw = 0.54 warmedge Ug = 1.0
châssis triple vitrage Porte-fenêtre 2 vantaux L1530 x H2180 mm
Uw = 1.5 Wm²K / Sw = 0.49 et Tlw = 0.62 warmedge Ug = 1.1
châssis double vitrage Porte-fenêtre 2 vantaux L1530 x H2180 mm
Peinture:
Par thermolaquage polyester de 60 microns minimum résistant au UV et rayure selon une teinte
Étanchéité:
2 vantaux dim L1530 x H1480 mm / Résultats AEV:
A*4 – E*9A – V*C2

LE CONFORT À L’ÉPREUVE DU TEMPS
C’est rassurant de pouvoir compter sur les performances de la fenêtre Aluminium Satin moon. Conçue pour durer, cette menuiserie d’exception vous garantit, année après année, le meilleur du confort pour une qualité de vie… Optimale !
- Durabilité et résistance optimales : fiabilité et performances constantes sur le long terme
- Confort phonique : affaiblissement acoustique jusqu’à 41 dB
- Extrême simplicité d’entretien : 1 à 2 nettoyages à l’eau et au savon par an
- Option porte-fenêtre : seuil de porte réduit à 16 mm pour faciliter le passage des Personnes à Mobilité Réduite
- Contribution à l’environnement : baisse considérablement vos besoins en énergie.

SÉCURITÉ ASSURÉE, TRANQUILLITÉ PRÉSERVÉE
Choc, intrusion… Face aux accidents comme aux risques d’effraction, la fenêtre Aluminium Satin moon tient le choc pour préserver votre tranquillité. Et pour aller plus loin dans la protection, elle peut intégrer de multiples options de sécurité. Vivez en toute sérénité,
- Haute résistance mécanique : Profilé aluminium très épais
- Multiple point de fermetures selon la taille et la nature de la fenêtre
- Poignée secustik Hoppe
- Possibilité d’ajouter une option sur le vitrage retardateur d’effraction
















